UMBAU UND SANIERUNG DOPPELHAUSHÄLFTE
STUTTGART


Aufgabenstellung:
Die Bauherrschaft wünschte, nachdem „die Kinder aus dem Haus“ waren, ihre Doppelhaushälfte aus den 50er Jahren zu sanieren, vor allem im Zugangsbereich eine einladende und freundliche Situation zu schaffen.
Nach einigen Diskussionen und Vorlegen eines Sanierungskonzeptes, in dem auf die Notwendigkeit der energetischen Sanierung hingewiesen wurde, kam man überein, das Gebäude umfassend zu bearbeiten.
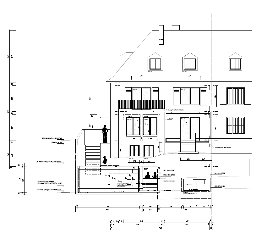
Erneuert wurden Fenster, die Fassade mit Vollwärmeschutz versehen, alle Eingangstüren ausgetauscht, das alte Vordach entfernt und durch ein Neues ersetzt.
Im Inneren wurden Durchbrüche geschaffen, Küche und Essbereich großzügig verbunden, sodass von Nord nach Süd durchgewohnt werden kann.
Die Freiflächen des großzügigen Grundstücks oberhalb der Gäubahnlinie wurden vor der Umgestaltung schon entsprechend den jahreszeitlichen Bedingungen genutzt. Die vorsichtigen Eingriffe in die Struktur integrieren nun das Bauwerk als Element innerhalb der verschiedenen Zonen und Flächen, schaffen Verknüpfungen der Bereiche über das Gebäude, Innen und Außen sind fließend.
Sanierungskonzept:
Das Doppelwohnhaus wurde vor dem Krieg geplant, allerdings erst Anfang der 50er Jahre nach einigen Entwurfskorrekturen gebaut.
Der ursprüngliche Entwurf war stärker am sogenannten Heimatstil mit teilweise Zierfachwerk gedacht, diese Elemente entfielen nach den Kriegswirren, das Gepräge des Hauses „versachlicht“, sicherlich auch, um sich von der vorangegangenen Zeit zu distanzieren.
Das Bauwerk erscheint klar und wirkt eher als kleine Villa. Baurechtlich gilt hier noch die Staffelbauordnung aus dem Jahre 1936, die diesen Bereich auch als Klein- bzw. Landhausgebiet klassifiziert (Baustaffel 8).
Als Ziel der Sanierung wurde formuliert, den Charakter des Gebäudes zu erhalten, gleichzeitig aber den Anforderungen und gestiegenen Ansprüchen gerecht zu werden.
Das alte Garagenbauwerk wurde abgebrochen und durch eine Baute in sehr moderner Sprache ersetzt. Die kontrastierende Wirkung lässt die einzelnen Teile stärker wirken und unterstreicht jeweils das Alte und das Neue.
Die Klappläden des Obergeschosses auf der Südseite als Sonnenschutz und die daraus resultierende Bandwirkung der Fenster des Gebäudes sind nach wie vor Bestandteil.
Die ursprünglichen Bodenbeläge blieben erhalten; das alte Stabparkett musste lediglich überarbeitet, der Natursteinbelag (Solnhofener Platte) der Diele und der Küchenzone erneuert werden.
Um Schimmelpilzbildung vorzubeugen erhielt das Wohnhaus zusätzlich eine kontrollierte Be- und Entlüftung mit zentraler Abluftbox im Dachspitz.




Gebäudedaten:
Beauftragung: Mitte 2005 Lph 1-8 HOAI
Baugesuch: Juni 2006
Fertigstellung: Herbst 2008
Außenanl. Frühj. 2009
NGF: 210m²
BRI: 1.080m³
Gesamtprojektkosten: 450.000,-€
Planung/ Bauleitung: Dipl. Ing. Freier Architekt
Matthias Wachter
Liststraße 18
72810 Gomaringen
Mitarbeit: Dipl.Ing. (FH)
Freier Architekt
Georg Eckert
Statik: IB Peter und Lochner
Stuttgart
Vor
Zurück
Projekte